全国统一热线:010-5772-9928
网站首页
公司简介
公司简介
资质荣誉
案例展示
家装案例
工装案例
品质设计
设计团队
设计管理体系
设计理念
前沿灵感
服务介绍
服务流程
|
客户反馈
|
在线预约
联系我们
分公司
招贤纳士
联系我们
案例展示
DISPLAY CASE
简约
|
中式
|
美式
|
地中海
|
复式
|
新古典
|
田园
|
欧式
|
现代
您所在的位置:
首页
>
案例展示
>
家装案例
>
田园
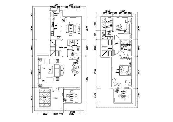
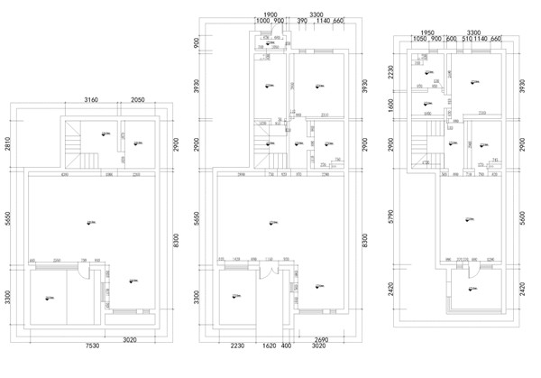
北京万象新天美式田园
140㎡北欧乡村风三居
版权所有:北京精鼎装饰工程有限公司
京ICP备14057071号-1
友情链接: